
▲ 照片截自|泰嘉開發官網
水晴川
獎項|2025 建築園冶獎 大樓住宅建築景觀
案址|台南市安南區
獲獎類型|公共空間設計
設計概念|本案以黑灰白為主,採現代奢華風。
運用懸浮式金屬鏤空屏風、大理石、木皮與鏡面等異材質,
呈現出層次豐富而有秩序的空間美學。
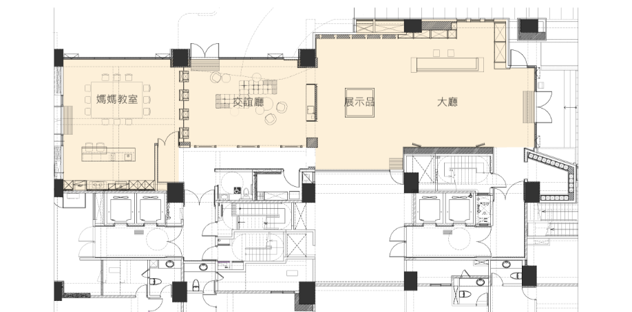
一樓空間|大廳、交誼廳、媽媽教室等空間
二樓空間|健身房
▲ 一樓平面圖
▲ 大廳使用點、線、面基本元素,以水晶吊燈作為視覺焦點。
後方過道設計則搭配懸浮式金屬鏤空屏風與大理石,呈現層次豐富的空間美學。
▲ 交誼廳透過一體而上的木紋造型櫃,延伸視覺空間。
與簡約米白沙發組合,創造精緻奢雅迎賓氛圍。

▲ 媽媽教室兼具美觀與實用。地面鋪設白色磁磚,
搭配黑色簡約廚具,設置淺色大木桌,提供多人聚會用途。
▲ 二樓平面圖
▲ 健身房整體採黑灰白配色,使用鏡面與線性燈條延伸視覺空間。
整面落地窗引入自然光,與木質造型櫃與石材檯面呼應,營造兼具機能與風格的清新空間。